
نقشه ساختمان چیست؟
طراحی نقشه ساختمان یکی از حرفههایی است که نیاز به مهارت و دقت بالا دارد تا در نهایت نتیجه نهایی منحصربهفرد و همینطور شیک باشد. بهصورت کلی طراحیهایی را ایده آل میدانیم که تناسب کامل با ماهیت محیط را داشته باشند. بهطور مثال هیچگاه نباید طراحی نقشهای که مختص به محیطهای اداری است را برای یک محیط مسکونی در نظر گرفت و همینطور بالعکس.
در نظر داشته باشید که تناسب با ماهیت تنها یکی از نکاتی است که در طراحی باید به آن دقت کرد و مواردی مانند نور محیط، استفاده مفید از متراژ زمین، سیرکولاسیون، بالکن و بسیاری از موارد دیگر نیز حائز اهمیت هستند.
اگر علاقهمند به یادگیری نکات بیشتری در مورد طراحی نقشه ساختمان هستید، پیشنهاد میشود تا پایان این مطلب با ما همراه باشید. در ادامه مجموعه عمارت سازان آروین هر آنچه را که نیاز است برای طراحی نقشه ساختمان بهتر بدانید، در اختیار شما عزیزان قرار خواهد داد.
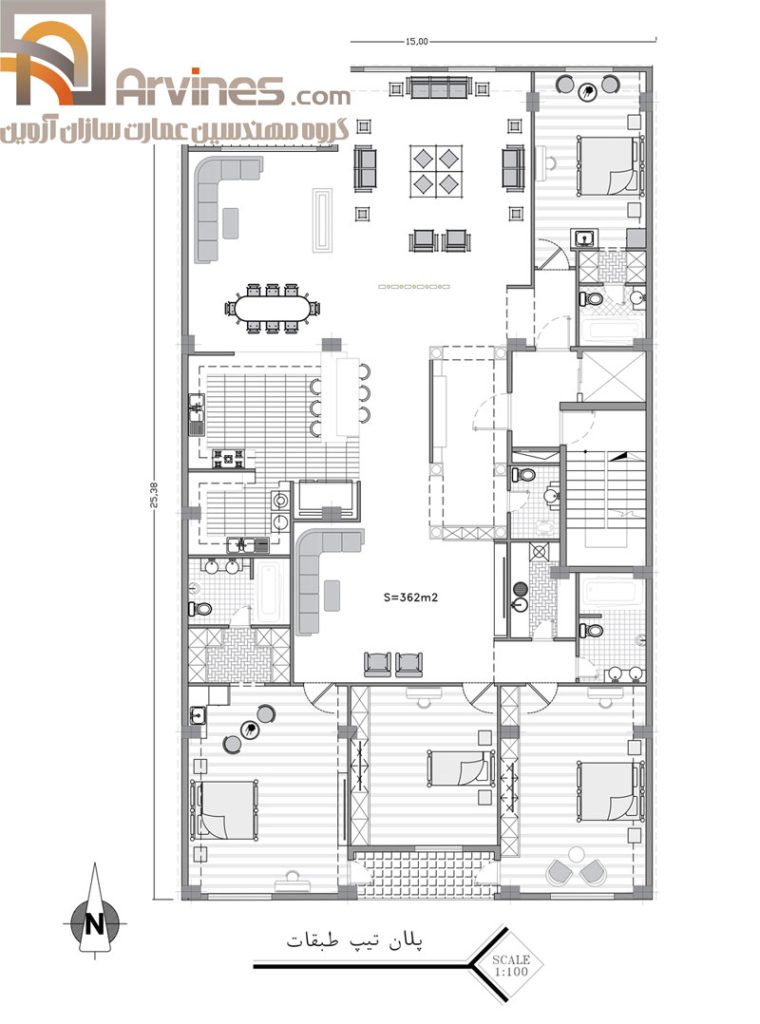
نمونه نقشه ساختمان
گروه عمارت سازان آروین دارای بیش از 120 پروژه انجام شده در این زمینه می باشد.

پروژه شهرآرا
پروژه مسکونی
پنج طبقه جنوبی واقع در شهرآرا
منطقه 2
ابعاد زمین 10.50 در32 متر مربع
مساحت کل زمین: 336 مترمربع
متراژ زیر بنا: 232.74 مترمربع
متراژ کل : 1500 مترمربع
در هر طبقه دو واحد مسکونی
مساحت هر طبقه 170- 180 مترمربع


پروژه شریعتی
پروژه مسکونی پنج طبقه جنوبی واقع در خیابان شریعتی – منطقه 1
ابعاد زمین: ضلع شمال شرقی : 9.30 متر مربع ضلع شمال غربی : 4.00 متر مربع ضلع غربی: 29.90 متر مربع
ضلع جنوبی: 7.50 متر مربع
ضلع شرقی: 32.50 متر مربع
مساحت کل زمین: 399.50 مترمربع
متراژ زیر بنا: 236.30 مترمربع
متراژ کل : 2236.80 مترمربع
در هر طبقه دو واحد مسکونی به مساحت 105.80 مترمربع


پروژه نارمک
پروژه مسکونی
پنج طبقه جنوبی
واقع در نارمک
منطقه 8
ابعاد زمین: 12.5 در 26.75 متر
مساحت کل زمین: 334.37 مترمربع
متراژ زیر بنا: 234.60 مترمربع
متراژ کل : 1625.05 مترمربع
در هر طبقه یک واحد مسکونی به مساحت 214 مترمربع


پروژه مرزداران
منطقه 2
نقشه ساختمان مسکونی
دو نبش واقع در مرزداران – بلوار جانبازان
پنج طبقه ، دو زیرزمین و یک پیلوت
ابعاد زمین 10 در 30 متر مربع
مساحت کل زمین: 300 مترمربع
متراژ زیر بنا: 261.70 مترمربع
متراژ کل : 1865 مترمربع
در هر طبقه یک واحد مسکونی ب
مساحت هر طبقه 176 مترمربع


پروژه آسمان 9
منطقه 2
پروژه مسکونی واقع در سعادت آباد –آسمان 9
چهار طبقه شمالی – یک زیرزمین و یک پیلوت (دو واحد دوبلکس)
ابعاد زمین: 5 در 20
مساحت کل زمین: 100 مترمربع
متراژ زیر بنا: 67 مترمربع
متراژ کل : 405 مترمربع
در هر طبقه یک واحد مسکونی
مساحت هر طبقه 43 مترمربع

طرح ساختمان
طرح ساختمان یکی از مهمترین مراحل در فرایند ساختوساز است که علاوهبر تأثیر بر ظاهر نهایی، کیفیت سازه و تعامل ساختمان با محیط اطراف را هم تحت تأثیر قرار میدهد. در پیادهسازی و اجرای این طرح باید خلاقیت و دانش فنی با هم ترکیب شوند تا به نتیجهای مطلوب رسید. مراحل رسیدن به طرح نهایی که تمامی فاکتورها در آن رعایت شده باشند شامل گامهای مختلفی است که هر گام نقش پررنگی در تضمین موفقیت پروژه دارد و نمیتوان از مرحلهای چشمپوشی کرد.
طرح ساختمان هنگامی موفق است که بتواند نیاز کارفرما و محدودیتهای پروژه را در کنار ضوابط شهرداری پاسخ دهد. بهطورکلی، یک طرح خوب باید ترکیبی هدفمند از صرفهجویی در فضا، کنترل هزینه، پایداری انرژی و زیباییشناسی باشد. برای این منظور به یک برنامه فیزیکی دقیق نیاز است که اندازه فضاها و ارتباط آنها با یکدیگر و اولویتهای کارفرما را مشخص کند، چیزی که در نخستین گام این طرح با وسواس و دقت بالا باید موردتوجه قرار گیرد.
با داشتن اطلاعات کامل نسبت به فضا و هدف کلی ساختمان، میتوان شرایط واقعی ازجمله تابش آفتاب، جهت غالب باد، دسترسیها و عناصر طبیعی اطراف را با نیاز پروژه ترکیب کرد تا به بهترین راهکار رسید. از نظر فنی و اقتصادی نیز طرح خوب باید با سیستمهای تأسیسات و بودجه پروژه همخوانی داشته باشد تا قابلیت اجرا پیدا کند، چرا که بهترین طرحها اگر شرایط پیاده سازی از نظر بودجه یا مهندسی را نداشته باشند، بینتیجه میمانند. بنابراین هماهنگی میان معمار، طراح سازه و مهندس تأسیسات و کارفرما جزو موارد ضروری در طرح ساختمان است .
نقشه مهندسی ساختمان
از دیگر بخشهای مهم در یک ساختمان، نقشه مهندسی ساختمان است که اطلاعاتی نظیر محاسبات سازه، جزئیاتی که باید در قسمتهای مختلف تأسیسات مکانیکی و برقی به کار روند و همچنین دستورالعملهای اجرایی را در خود دارد. عملاً بدون داشتن نقشه مهندسی ساختمان نمیتوان کار را بهصورت ایمن و هماهنگ با استانداردها اجرا کرد.
در تهیه این نقشه مهندسی ساختمان، باید جلساتی جهت همفکری بین معمار و مهندسین برگزار شود تا هم از لحاظ زیبایی و هم از لحاظ مهندسی بتوانند مسیرهای مختلف مثل مسیر لولهکشی، کانالها و جزئیات را با هم بررسی کنند و به یک توافق برسند. در نهایت، نقشه مهندسی ساختمان برای دریافت مجوزها الزامی است و پروژه باید کاملاً مطابق با ضوابط فنی و ایمنی آن اجرا شود.
نقشه داخلی ساختمان
نقشه داخلی ساختمان در واقع هویت عملکردی آن بنا را تعیین میکند و نشان میدهد که چگونه فضاها با هم ارتباط برقرار میکنند. شاید فکر کنید که این نقشه صرفاً محل قرارگیری دیوار و در و پنجره را نشان میدهد، اما اینگونه نیست. نقشه داخلی تعریف کامل و واضحی از اتاقها، مسیرهای دسترسی و حتی مکان تأسیسات را ارائه میدهد. در کنار این موارد میتوان محل قرارگیری مبلمان و جزئیات اجرایی را نیز در نقشه داخلی پیشبینی کرد و برای هر قسمت برنامهریزی درستی داشت.
هنگامیکه نقشه داخلی ساختمان بهدرستی طراحی شود، مسیرهای رفتوآمد میان فضاهای عمومی و خصوصی، ارتباط بین فضاهای کوچک و فضاهای بزرگتر مانند موتورخانه از پیش مشخصشده و با برنامه درست محل قرارگیری آنها تعیین میشود. اینکه این نقشه داخلی ساختمان چگونه اجرا شود، بستگی به نیاز کاربران و ساکنان و همچنین شرایط واقعی و سازهای دارد. برای مثال، نقشه داخلی یک آپارتمان مسکونی با نقشه دفتر کار یا مرکز درمانی کاملاً متفاوت است، زیرا نیازهای هر یک از این کاربریها با هم فرق دارد، پس با یک استراتژی نمیتوان برای آنها نقشه ترسیم کرد.

طرح نقشه ساختمان
طرح نقشه ساختمان برای اجرا به مجموعهای کامل از مراحل کلیدی نیاز دارد که باید به آنها توجه داشت. در قدم اول باید یک تعریف کامل از طرح ارائه شود که در آن معمار ایده خود را بیان کند. در ارائه این طرح باید به مواردی مثل زیباییشناسی، ملاحظات سازهای، عملکرد فضا و همچنین محدودیتهای اقتصادی توجه داشت.
در قدم دوم نوبت به ایجاد یک فهرست دقیق از قسمتهای مختلف ساختمان میرسد. در این فهرست مواردی مثل اتاقها، فضاهای عمومی و بخشهای خدماتی باید لحاظ شود. همچنین در این مرحله طبق اولویتهای کارفرما اندازه پیشنهادی هر قسمت مشخص میشود. در کنار تعیین ابعاد، عملکرد هر فضا را هم باید درنظر گرفت.
در گام بعدی، نوبت به بررسی محدودیتها میرسد، به طوری که دسترسیها، جهتگیری خورشید، جهت باد غالب، قرارگیری درختان و فضای سبز پیرامون باید تحلیل شوند. این تحلیلها کمک میکنند طرح نقشه ساختمان با محیط اطراف سازگار شده و بیشترین استفاده را بتوان از محیط و منابع طبیعی مانند نور و باد داشت. همچنین بر اساس طرح نقشه ساختمان، باید یک برآورد هزینه انجام شود تا مقایسهای بین اجرای طرح و بودجه کارفرما صورت گیرد. حتی اگر بهترین طرح هم ارائه شود اگر با بودجه همخوانی نداشته باشد قابل اجرا نیست.
نمونه نقشه ساختمان با توضیحات کامل و فایل صوتی
نمونه نقشه ساختمانی
همانطور که در این نقشه ساختمان میبینید ما در قسمت ورودی واحد بالایی پشت در یک حالت جاکفشی تعبیه نمودیم که البته یک مقداری از فضای باکس پله را گرفتیم. درب سرویس هم که سمت چپ بود و خیلی به فضای پذیرایی مشرف بود رو جابجا کردیم و به سمت راست که یک مقدار آن حریم حفظ شود، آوردیم. در این نقشه ساختمانی کنار سرویس هم ما یک کمد و گلدان داشتیم.سعی کردیم از آن فضا یک مقدار بهینهتر استفاده کنیم و درواقع سه کمد تعبیه کردیم که هم برای فضای پذیرایی هست هم برای قسمت راهروهای اتاقخوابها که رو به روی آشپزخانه هست و میتواند برای مثال ظرف و ظروف آشپزخانه و وسیله عمومی را آنجا قرار دهند.
یک کمد کوچک برای اتاق بالایی و داخل اتاق بالایی هم ما یک تخت ۲نفره داشتیم که لزومی نداشت. پس ما یک تخت تکنفره گذاشتیم که یک فضای بازتری ایجاد شود. جای تخت رو هم تغییر دادیم که یک مقدار مناسبتر باشد و سرویس اتاق را هم یک مقدار کوچکتر کردیم، چون برای یک نفر همان مقدار سرویس کافی است. در عوض ادامه فضا را به سرویس اتاق سمت چپ که اتاق والدین محسوب میشود، دادیم. ما با این کار موفق شدیم که یک اتاق لباس یا درواقع walking closet هم برای این اتاق طراحی کنیم. داخل همان اتاق والدین اگر دقت کنید جای تخت دقیقاً روبروی درب اتاق هست که نمای خوشی ندارد و از سمت چپ هم زیر پنجره قرار میگیرد که استاندارد نیست. در کنار تمامی این موارد سعی بر آن بوده که نمای ساختمان به بهترین نحو طراحی شده باشد.
ما جای تخت رو هم عوض کردیم که هم آن حریم اتاق و آن تخت حفظ شود و هم زیر پنجره نباشد. که موارد ایمنی نقشه ساختمانی رعایت شده باشد. در قسمت آشپزخانه کانترساده مستطیلی بود، ما تصمیم گرفتیم گوشه کانتر را به حالت کرو دربیاوریم. که یک حالت ورودی و یک حس خوشآمد گویی برای افرادی که میخواهند وارد پذیرایی شوند داشته باشد. در قسمت پذیرایی هم جای مبلمان و میز ناهارخوری را جابجا کردیم که میز ناهارخوری به آشپزخانه نزدیکتر باشد و مبلمان هم نزدیک ورودی باشد که مهمانها راحتتر بتوانند به فضای پذیرایی دسترسی داشته باشند. داخل واحد پایینی هم فضا را چک کردیم و مناسب بود. فقط قسمت آشپزخانه یک مقداری ناقص بود و ما تصمیم گرفتیم آن را تکمیل کنیم. کابینت بیشتری بگزاریم. مبلمان صحیح، ظرفشویی، اجاقگاز و همینطور فضای کانتر قراردادیم.
عکس نقشه ساختمان


قبل و بعد نقشه معماری ساختمان 2 واحدی
یک نقشه معماری ساختمان ۲ واحدی هست که ازپلان سمت راست برایتان شرح میدهم. در قسمت ورودی فضا به شکلی بود که به پذیرایی اشراف داشت. با طراحی یک کفش کن، ما دید مستقیم به پذیرایی را بستیم به شکلی که راه عبور و مرور به سمت آشپزخانه و اتاقخواب دلنشینتر باشد و همینطور تلویزیون را پشت دیوار سرویس بهداشتی تعبیه کردیم. در قسمت آشپزخانه همانطور که میبینید مبلمان به شکل صحیح و استانداردی چیده شد است. به همراه یک میز ناهارخوری که برای ساکنین این واحد کافی هست داخل اتاقخواب یک کمد داریم که پشت در قرارگرفته است. جای این کمد نامناسب هست و دسترسی به آن همینطور که میبینید سخت است پس ما جای کمد را از پشت در به کنار در و قسمت بالا منتقل کردیم که دسترسی به این کمد خیلی بهتر باشد. در عوض پشت در را یک سری رختآویز تعبیه کردیم که مورداستفاده قرار بگیرد.
در نقشه معماری ساختمان قسمت حمام اتاق را همتغییر ایجاد نکردیم بهجز گذاشتن یک سری مبلمان ساده همینطور تختخواب را هم چرخاندیم و یک تختخواب با ابعاد استاندارد را پشت دیوار حمام قراردادیم بهطوریکه یک فضای بازتری ایجاد بشود داخل اتاق که بتوانیم میز داور را قرار بدهیم. در واحد غربی هم همانطور که میبینید درب ورودی کاملاً مستقیم به فضای داخل خانه که بخش پذیرایی آشپزخانه هست باز میشود و این خوشایند نیست. در اسن نقشه معماری ساختمان ما مجدداً یک کمد در قسمت ورودی این واحد تعبیه کردیم تا قسمت ورودی را بپوشاند و دید کامل به فضای داخل خانه نداشته باشد. پشت کمد تلویزیون رو قراردادیم. در آشپزخانه یک سمت را در پلان اولیه داشتیم به خاطر کمبود فضا و کمبود کابینتهای آشپزخانه که یک امر ضروری داخل خانه هست که کارفرما و مالکین به آن توجه میکنند، ما هر دو سمت دیوارها رو کابینت تعبیه کردیم که فضای مطلوبی در وسط این فضا میماند که ما یک میز ناهارخوری مناسب باری آن قرار بدهیم. قسمت پذیرایی هم مبلمان را استانداردتر قراردادیم بهطوریکه راه عبور و مرور به فضای اتاقخواب دچار اختلال نشود. بعد از سرویسها که گذر کنیم ما اتاقخواب را داریم که در پلان اولیه ما کمدی برای این اتاق تعریفنشده است. با توجه به ابعادی که این اتاقخواب داشت، تصمیم بر این شد یک سری کمد تعبیه کنیم به صورتی که یک فضای اتاق لباس تعبیه بشود. این کار باعث میشود محرمیت اتاق هم حفظ بشود. وقتیکه شما در اتاق را باز میکنید با یک کمد مواجه میشوید که دیدمستقیم به فضای اتاق رو پوشانده و یک راهرو که از میان این کمدها راهی وجود دارد که به فضای اتاق و چیدمان فضای اتاق منتهی میشود. ما جای مناسبی برای تخت و برای قرار دادن میز درآور داریم.
نمونه نقشه ساختمان 2 واحدی


پلان پیاده سازی شده کامل
در پلان شماره 1 با عقب کشیدن دیوار سرویسها به سمت چپ، کمی فضای راهروی ورودی را عریضتر کردیم تا حس بهتری بدهد و راه عبور خیلی بهتر و مناسبتر باشد. در بخش شماره ۲ که اتاقخواب شمالی ما هست که بالای نقشه ساختمان قرار دارد، چیدمان مبلمان داخل اتاق که همان تخت خواب هست درست و استاندارد نبود. زیرا پایین پنجره قرارگرفته است و این با ضوابط آتشنشانی مغایرت دارد. پس ما این تخت را به سمت بالا که دیوار هست، چرخاندیم و یکفاصله ایجاد کردیم تا نزدیک پنجره و همینطور یک میز درآور هم براش تعبیه کردیم. شماره ۳ هم همینطور که میبینید چیدمان داخل سرویس حمام هست حمام مستر اتاقخوابمان که خیلی کامل نبود. ما آمدیم یک مقدار استانداردتر با مبلمان مناسب چیدمانش را انجام دادیم. شماره ۴ مبلمان داخل سرویس هست که با فضایی که ایجادشده بود مناسب بود که یک وان اختصاص بدهیم. برای این حمام شماره ۵ بخش راهروی اتاقها هست و همانطور که میبینید داخل نقشه ساختمان قبل، فضای خیلی قطوری بین دیوارها هست و فاصلهای بین ۲ دیوار افتاده یک حالت بدون استفاده بود. آنجا هم میتونه داکت قرار بگیرد. میتوانیم آنجا را یک شلف دربیاوریم و همانطور که داخل پلان این شلف یک ارتفاعی به بالا شروع میشود و پایینش آن گلدان میتواند قرار بگیرد، دیوار قسمت بالایی را یک مقدار بالاتر کشیدیم. با دیوار پایین آنکه بین آنها فضای عبور و مرور اتاق هست دیوار پایینی یک عدد کنسول برای بخش پذیرایی قراردادیم. همانطور که میبینید شماره ۶ و ۷ قسمت پذیرایی آشپزخانه ما هست که جای آنها را عوض کردیم. آشپزخانه سمت بالا قرار گرفت و پذیرایی به سمت پایین آمد که بتواند از نور طبیعی فضا استفاده بکند. شماره ۸ میز ناهارخوری ما هست که داخل نقشه ساختمان اولیه میز ناهارخوری یک میز غیراستاندارد بود. به لحاظ مبلمان چون ابعاد و اندازه درست نبود پس ما آمدیم یک میز استانداردتر در نظر گرفتیم و همینطور یه میز بزرگتر چون این فضا به ما این اجازه رو میداد که برای واحد مسکونی ۳ خواب بتواند یک میز بزرگتر قرار بگیرد.
نمونه نقشه ساختمان کامل


صفر تا صد مراحل تهیه نقشه ساختمان
یکی از حیاتیترین مراحل در پروسه ساختوساز، طراحی نقشه ساختمان است. باید گفت که تمامی مراحل اجرایی ساختمان برحسب همین نقشه پیش میرود، پس اگر بهدرستی و بر اساس اصول مهندسی تهیه نشود مشکلات زیادی را در حین ساخت و بهرهبرداری رقم میزند.
علاوه بر این یک نقشه باید از سازمان نظاممهندسی و شهرداری مجوز دریافت کند که برای این امر هم به طراحی اصولی و دقیق نیاز دارد. در ادامه گامهای اصلی و مهم طراحی نقشه ساختمانی را با هم بررسی میکنیم:
1. مشخصکردن ابعاد و اطلاعات اولیه
نخستین گام دریافت دقیق ابعاد زمین است، این اطلاعات توسط کارفرما اعلام شده که میتواند در قالب کروکی یا پلان موقعیت زمین باشد. در این پلان اطلاعاتی نظیر طول و عرض، موقعیت جغرافیایی، جهت شمال و دیگر اطلاعات مربوط به معابر اطراف بیان میشود. مهندس طراح باید بر اساس همین دادهها دید دقیقی نسبت به موقعیت زمین و همچنین محدودیتهایی که ممکن است داشته باشد به دست آورد.
2. جانمایی پله و آسانسور
پس از آن که محدوده زمین و دیوارهای اطراف آن مشخص شد، نوبت به محل سرویس پله و آسانسور میرسد. این انتخاب باید بر اساس عوامل مختلفی نظیر تعداد طبقات، تعداد واحد در هر طبقه و نوع اسکلت ساختمانی انجام شود. هر چه این مرحله از ترسیم نقشه ساختمان، اصولیتر باشد بر روی سیرکولاسیون داخلی و راحتی ساکنان تأثیر مستقیم میگذارد.
انواع رایج پلهها عبارتاند از:
- پله یکطرفه مناسب برای فضاهای کشیده.
- پله دوطرفه جزو رایجترین انواع پله که معمولاً پاگردی در میانه دارد.
- پلههای سه یا چهارطرفه مخصوص ساختمانهایی با ارتفاع زیاد.
- پله مارپیچ بیشتر در ویلاها یا واحدهای دوبلکس بکار میرود.
همچنین ابعاد استاندارد برای پلهها هم به شرح زیر است:
- کف پله: 28 تا 32 سانتیمتر
- ارتفاع پله: 12 تا 20 سانتیمتر
- عرض پله: حداقل 110 سانتیمتر
- پاگرد: حداقل عرض برابر با عرض پله
- چشم پله: حداقل 30 سانتیمتر
3. تفکیک فضاهای عمومی و خصوصی
گام بعدی نقشهکشی و طراحی آن جداسازی فضاهای عمومی مثل پذیرایی و آشپزخانه از فضاهای خصوصی مانند اتاقخواب و حمام است. این تفکیک هم به حفظ حریم شخصی ساکنین کمک میکند و هم باعث افزایش زیبایی بصری میشود. قسمت ورودیها باید بهگونهای طراحی شود که از دید مستقیم به فضاهای خصوصی جلوگیری کند.
4. جانمایی ریز فضاها
در این مرحله فضاهای مختلف نظیر آشپزخانه، اتاقخواب، سرویس بهداشتی و پذیرایی باتوجهبه ابعاد استاندارد و همچنین نیاز کارفرما در نقشه اعمال میشود. معمولاً برای آشپزخانه حداقل ۱۲ مترمربع در نظر میگیرند که دسترسی مناسب به تراس و تهویهمطبوع داشته باشد.
در رسم اتاقخوابها حداقل یک عدد برای والدین با ابعاد ۱۵ متری در نظر میگیرند و دیگر اتاقها معمولاً ابعاد ۱۲ متری دارند. در قسمت پذیرایی حداقل ۲۵ مترمربع با نورگیر مستقیم باید در نظر گرفته شود.
برای سرویس هم سه مترمربع یکی در فضای عمومی و یکی در فضای خصوصی باید در نظر گرفت. همچنین حمام هم میتواند داخل اتاق مستر و یکی هم در صورت تمایل کارفرما در فضای عمومی باشد.
5. ستونگذاری
بر اساس نوع سازه که فلزی باشد یا بتنی یا شناژ، ستونگذاری انجام میشود. این ستونها بهطوری باید قرار بگیرند که مانع عملکرد فضای اصلی، عنوان مثال پذیرایی، نشوند.
6. مبلمان پلان
در مرحله پایانی هم طراح به کمک بلوکهای مبلمان استاندارد، بخشهای مختلف ساختمان را نمایش میدهد. این کار باعث درک بهتر نقشه توسط کارفرما و مجریان شده و امکان ارزیابی نهایی را فراهم میکند.
تفاوت نقشه فاز یک و فاز دو ساختمان چیست؟
نقشه فاز یک نقشه مفهومی و اولیه بوده که برای معرفی کلی پروژه تهیه میشود. در این نقشه اطلاعاتی نظیر طرح کلی، موقعیت فضاها، فرم کلی بنا و نحوه استقرار ساختمان به چشم میخورد. هدف ترسیم آن برآورد اولیه زمان و هزینه و نمایش طرح به کارفرما است. در نقشههای فاز یک جزئیات اجرایی وجود ندارد.
اما نقشه فاز دو، نقشهای دقیق و کامل برای اجرای پروژه بوده که تمامی جزئیات معماری، سازهای و تأسیسات مکانیکی و الکتریکی را در بر میگیرد. هدف آن اجرای دقیق پروژه توسط پیمانکار است و اطلاعاتی مبنیبر ابعاد ستونها، نوع مصالح، مسیر لولهکشی، محل چراغها و…. را در آن میتوان دید. این نقشه توسط تیمهای مختلف معماری، سازه، برق و مکانیک ترسیم میشود.
در یک کلام، نقشه فاز ۱ معرف پروژه است و نقشه فاز ۲ راهنمای اجرای آن است.
چرا به نقشه ساختمان نیاز داریم؟
ترسیم نقشههای ساختمانی کمک میکند تا قبل از پیادهسازی طرح تمامی مشکلات احتمالی پدیدار شود و قبل از اجرا نسبت به حل آن اقدام شود. از طرفی دیگر با پیادهسازی طراحیها، افراد دقیقاً میدانند که چه باید انجام بدهند درواقع مسیر ساختمانسازی را این نقشهها تعیین میکنند و حکم راهنما را دارند. در ادامه به برخی دیگر از مزایای ترسیم انواع نقشههای ساختمانی اشاره خواهیم کرد:
- با ترسیم نقشه ساختمانی کارفرما مطلع میشود که در نهایت سازه به چه شکل درمیآید و در صورت عدم موافقت قبل از اجرا آن را اعلام میکند و یا انتقادات و پیشنهادات خود را برای ویرایش طرح بیان میکند.
- نقشههای ساختمانی سبب میشود تکلیف جزئیات ساختمان نیز بهطور دقیق مشخص شود.
- در پلان ساختمان بخشهایی که نیاز به کار و زمان بیشتر دارند، مشخص میشوند.
- طراح میتواند در این پلانها ایدههای خود را ثبت کند و در هنگام اجرا بهصورت اصولی پیادهسازی شود.

نقشه ساختمان شیک
برای ایده گرفتن بیشتر شما عزیزان در ادامه نقشههایی را قرار میدهیم که دقت به این نقشهها به افزایش قدرت ذهن شما در نقشهکشی کمک ویژه میکند:
- نقشههای ساختمان با عرض 10 متر


2. نقشه ساختمانی ساده


نمونه نقشه قبل و بعد
در این پلان، در ورودی به سمت پذیرایی باز میشود که از نظر ظاهری مطلوب نیست؛ بنابراین با جابهجایی محل سرویس بهداشتی که در نزدیکی در قرار داشت، تلاش کردیم فضای پیشورودی مناسبی ایجاد کنیم که دید مستقیم به داخل خانه نداشته باشد. همچنین با قرار دادن لانجی پشت مطبخ، فضای داخلی را بازتر کردیم. بهعلاوه، معمولاً استفاده از لاندری به عهده خانم خانه است و نیازی نیست در دسترس تمامی اعضای خانواده قرار گیرد.
مطبخ را نیز کمی جلوتر آوردیم و فضایی مخصوص برای یخچال تعبیه کردیم، که این کار باعث شد دید به یخچال از داخل پذیرایی محدود شود. این تغییرات عبور و مرور به آشپزخانه را آسانتر و بهینهتر کرده است. همچنین، بالکن را با قرار دادن مبلمان مناسب، محیطی دلنشینتر ساختیم و درب ورود به بالکن را از داخل آشپزخانه قرار دادیم تا بتوانیم چیدمانی بهتر در فضای پذیرایی داشته باشیم. همانطور که مشاهده میکنید، با توجه به اینکه این واحد سهخوابه است، تعداد مبلمان را افزایش دادیم و فضایی استاندارد با تلویزیون، چند مبل اضافه و میز ناهارخوری فراهم کردیم که دسترسی آن به آشپزخانه بسیار راحت است.
در قسمت راهرو اتاقها، کمدی تعبیه کردیم که برای استفاده تمام اعضای خانواده مناسب باشد و وسایل عمومی در آن قرار گیرد. این کمد در کنار حمام واقع شده است. همچنین در اتاقخوابها مبلمان استاندارد و جایگذاری مناسبی انجام شد بهطوریکه تختها در یک سمت اتاق قرار گرفتهاند و میز مخصوص هر اتاق تعبیه شده است. مهمتر از همه، در اتاق وسطی که پیش از این فاقد کمد بود، کمدی مناسب نصب کردیم. اتاق سمت راست، واقع در جنوب شرقی پلان، تغییراتی در فضای حمام مستر و کمد آن داشتیم؛ کمد به پشت درب اتاق منتقل شد و مبلمان داخل اتاق و حمام مستر نیز به شکل بهینهتری چیده شدند.


بهترین نرمافزارها برای کشیدن نقشه ساختمان
امروزه نقشهکشی به کمک نرمافزارهای بسیار پیشرفته و حرفهای انجام میشود. این نرمافزارها ضمن راحتی کار ابزارهای مختلفی در اختیار مهندسین قرار میدهند که باعث افزایش سرعت عمل و بهبود دقت نهایی میشود.
Revit
نرمافزار Revit یکی از قدرتمندترین ابزارها برای طراحی معماری، طراحی داخلی و نمای ساختمان است. این نرمافزار قابلیت مدلسازی دوبعدی و سهبعدی داشته و به مهندسین معمار این امکان را میدهد که فضاهای مختلف مانند آشپزخانه، پذیرایی و اتاقها را بادقت بالا طراحی کنند. با استفاده از Revit بهراحتی میتوان آیتمهای معماری را در چند کلیک مدلسازی کرد.
ArchiCAD
ArchiCAD جزو نرمافزارهای تخصصی در زمینه طراحی معماری و سازه است که امکان ایجاد مدلهای دو و سهبعدی را با ویرایش و ذخیرهسازی آسان فراهم میکند. این برنامه برای آنالیز دقیق اطلاعات سازه بسیار کاربرد دارد و به مهندسین این اجازه را میدهد تا تغییرات مورد بر روی نقشه را بهسرعت اعمال کنند.
Rhino
از دیگر نرمافزارهای خوب برای مهندسی و نقشهکشها میتوان به Rhino اشاره داشت که برای طراحیهای سهبعدی دقیق و حرفهای عملکرد بسیار خوبی دارد. این نرمافزار به معماران اجازه میدهد تا فضاهایی مانند اتاقها، حمام، آشپزخانه و مبلمان را با جزئیات بالا مدلسازی کنند. یکی از مزایای اصلی آن هم قابلیت خروجی گرفتن طرح نهایی در قالب PDF برای ارائه به کارفرماست.
AutoCAD Architecture
نرمافزار AutoCAD Architecture نسخه تخصصی اتوکد برای معماری است که ابزارهای مخصوص طراحی پلان، سقف و دیوارها را دارد. برای کسانی که قبلاً با اتوکد کار کردهاند، یادگیری AutoCAD Architecture بسیار سریع و آسان است.
AutoCAD Civil
AutoCAD Civil هم یک نرمافزار مناسب برای طراحی مهندسی و معماری در مقیاس بزرگ است. این نرمافزار به مهندسین امکان مدلسازی دقیق آیتمهای سازهای را میدهد و میتوان آن را با اکسل ادغام کرد تا فرایند تحلیل دادهها و ترسیم نقشهها راحت و سریعتر شود.
انواع نقشهها ساختمانی
اگر بخواهیم نقشههای ساختمانی دستهبندی کنیم باید گفت بهصورت کلی میتوان انواع نقشههای ساختمانی را در سه گروه طبقهبندی کرد:
- نقشه معماری: پلان معماری، پلانهایی هستند که بهطور دقیق و با ذکر اندازه و ابعاد نشان میدهند که هر جز باید در کجا قرار بگیرند. این پلان توسط معماران بهدقت طراحی میشود. امروزه با پیشرفت تکنولوژی معمولاً مهندسان نقشهکشی معماری را بهصورت دستی کمتر انجام میدهند و همین امر سبب میشود تا خطاها و مشکلات پیشآمده در آن به کمترین حالت خود برسد.
- نقشههای تأسیساتی: نقشهها یا پلانهای تأسیساتی، مجموعهای از نقشهها هستند که در آن مواردی مانند مکان و ارتباط دقیق همه کلید و پریزها، تجهیزات برق و سیمکشی آنها مشخص میشوند. در این نقشهها معمولاً موارد دیگر مانند مسیر آب، تهویهها، هواکشها، تعداد و مکان دقیق پلهها و… نیز ذکر میشود. این نقشهها نیز خود به دو گروه عمده طراحی نقشه برقی و مکانیکی تقسیم میشوند.
- نقشههای سازهای: نقشههای سازهای بیشتر مورد کاربرد مهندسان میباشند. در این پلانها به مواردی مانند ابعاد و مکان دقیق قرارگیری ستونها و محورهای آنها، ابعاد و محل قرارگیری تیرها و نحوه اجرای آنها در سقف هر طبقه، تعداد و ابعاد و محل قرارگیری انواع پیها و بسیاری از موارد دیگر ذکر میشود. علاوه بر موارد بالا این نقشه محل قرارگیری فدراسیون، سازه نگهبان، اعضای مهاربندی و… را نیز مشخص میکند.
نکات طلایی طراحی نقشه ساختمان
برای داشتن طراحی نقشه ساختمان بینقص باید به نکات بسیار زیادی توجه کرد. این نکات آنقدر زیاد هستند که اگر بخواهیم به همه آنها بهصورت جزئی اشارهکنیم قطعاً از حوصله شما خارج میشود. در ادامه به 8 نکته طلایی که به شما کمک میکند نقشه ساختمان بهتری داشته باشید، اشاره خواهیم کرد.
- توجه ویژه عبور و مرور راحت ساکنین
همانطور که میتوان از تیتر حدس زد، منظور از عبور و مرور راحت این است که ساکنین یک ساختمان بهراحتی بتوانند به قسمتهای مختلف دسترسی داشته باشند و موقعیت فضاها نسبت به یکدیگر درست باشد. بهطور مثال برای راحتی بهتر ساکنین معمولاً اتاقخواب و سرویسهای بهداشتی را در طراحی نزدیک به هم قرار میدهند و یا در طراحی پلهها به این نکته توجه میکنند که عرض پلهها برای عبور دو نفر بهطور همزمان مناسب باشد.
رعایت همین نکات ریز در نهایت به آرامش بیشتر ساکنین کمک میکند.
2. سیرکولاسیون و فضاهای داخلی
سیرکولاسیون یکی دیگر از عناصر طراحی نقشه محسوب میشود که در ساختمانها و فضاهای عمومی از اهمیت بسیار بالایی برخوردار است. سیرکولاسیون به معنی گردش افراد در فضا و دسترسی به بخشهای مختلف ساختمان میباشد.
در محیطهای عمومی (موزهها، هایپرمارکتها، هتلها و…) که ترددها معمولاً بسیار بیشتر است، طراحان داخلی به سیرکولاسیون توجه ویژه میکنند و محل قرارگیری خروجهای اضطراری، آسانسورها، پلهها، پله برقیها و… را در مناسبترین حالت قرار میدهند.
از سیرکولاسیونهایی که مربوط به محیط داخلی خانهها هستند، میتوان به این مورد اشاره کرد که معمولاً سعی میشود آشپزخانه را در جایی قرار دهند که بهصورت مستقیم از پذیرایی دید نداشته باشد زیرا در صورت دیدمستقیم ممکن است افرادی که در آشپزخانه کار میکنند، کمی معذب شوند.
3. توجه به نور ساختمان
یکی از مهمترین نکاتی که تأثیر بسیار زیادی در بهتر دیده شدن نقشه ساختمان دارد، نور طبیعی است. طراحان و معماران باید نقشههای ساختمان را بهگونهای طراحی کنند که محیط داخلی ساختمان کم نور نباشد. طراحی کم نور، ساختمان را بیجون و خستهکننده جلوه میدهد و از طرفی بار منفی بر روی سلامت روان افراد میگذارد. البته توجه داشته باشید که در برخی از مواقع نور طبیعی بیشازاندازه نیز موجب سلب آرامش میشود.
جالب است بدانید ملاک اصلی بسیاری از افراد در هنگام اجاره و خرید ساختمان، نور کافی میباشد بنابراین نورپردازی طبیعی مهمترین عنصری است که نمیتوان از آن غافل شد.
به منظور بهرهگیری از نور طبیعی روز، سازهها باید در شمال و جنوب قرار بگیرند. در نظر داشته باشید که هر قسمت از یک طراحی میزان متناسبی نور نیاز دارد. بهطور مثال میزان نور موردنیاز برای اتاقخواب با آشپزخانه متفاوت است.
در سیرکولاسیون به تردد افراد کمتوان و معلول نیز توجه ویژه میشود.
4. توجه به کودکان
اگر طراحی نقشه را برای خانوادههایی انجام میدهید که دارای کودک هستند و یا در انتظار تولد فرزند میباشند، به ایمنی کودکان توجه ویژه داشته باشید. بهطور مثال از طراحی سطوحی که امکان بالا رفتن کودک در آن وجود دارد، خودداری کنید و یا دستگیرههای درب که بهصورت معمول در ارتفاع یک متر قرار میگیرند را در ارتفاع بالاتری قرار دهید تا کودکان نتوانند آنها را باز کنند.
5. طراحی پلهها
طراحی پلهها شاید در نگاه اول آسان به نظر برسد اما بهصورت کلی طراحی این بخش همراه با پیچیدگی بسیار زیادی است به همین دلیل به طراحان و معماران توصیه میشود که حتماً طراحی خود را از این بخش شروع کنند و بعد به سایر اجزا بپردازند.
در طراحی پلهها حتماً به استانداردهای لازم مانند ارتفاع، عرض، پاگرد و… توجه داشته باشید.
6. به متراژ توجه داشته باشید.
بسیاری از طراحان برای فروش بهتر ساختمانها سعی میکنند با وجود متراژ کم، اتاقهای سهخوابه طراحی کنند که این امر سبب کاهش کیفیت طراحی میشود.
بهصورت کلی در ساختمانهایی که کمتر 120 تا 130 متر هستند، طراحی اتاق سوم یک اشتباه بزرگ محسوب میشود. طراحی اتاق سوم سبب میشود محیطهای دیگر متراژ کافی نداشته باشند و از طرفی عملکرد آنها کاهش پیدا کند.
7. نشیمن خصوصی طراحی کنید.
درصورتیکه متراژ و محیط ساختمان به شما اجازه میدهد، پیشنهاد میشود در طراحی خود نشیمن خصوصی قرار دهید. این کار جلوه ویژهای به طراحی نقشه شما میدهد و ساختمان ساختهشده با این طرح بهسرعت به فروش میرسد.
8. تراس را فراموش نکنید.
طراحی تراس همراه با نکات بسیار زیادی از جمله انتخاب محل قرارگیری درست، اندازه و مساحت مناسب، دسترسیهای تراس و… میباشد.
در طراحی تراس کنید محل قرارگیری آن را در جایی قرار دهید که مستقیماً از طریق آشپزخانه راه داشته باشد. این امر سبب سهولت بیشتر ساکنین میشود.
9. به فروش نیز دقت داشته باشید.
در طراحیهای خود حتماً به فروش دقت ویژه داشته باشید. برای اینکه فروش سازهها آسانتر باشد، تنها کافی است نقشههایی را تهیه کنید که کاربردیتر باشند و از اجرا طرحهایی که ممکن است عامهپسند نباشند خودداری کنید.
سعی کنید از متراژهایی که در اختیاردارید به مناسبترین و مفیدترین شکل ممکن استفاده کنید.
تغییرات اصولی نقشه ساختمان
همانطور که مشاهده میکنید، تغییرات کلی در قسمت شمالی و بالایی نقشه ساختمان انجام شده است که در واقع شامل فضای پذیرایی، آشپزخانه، ناهارخوری و مهمتر از همه فضای ورودی میباشد. اگرچه جلوی درب ورودی فضایی برای ورود تعبیه شده و یک کمد قرار دارد، با باز شدن درب همچنان دید به داخل خانه وجود داشت. به همین دلیل، محل درب ورودی را تغییر دادیم و به ضلع سمت چپ لابی ورودی منتقل کردیم. همچنین محل سرویس بهداشتی و میز ناهارخوری را جابهجا کردیم؛ سرویس بهداشتی همچنان روبروی درب ورودی است که در جلو آن، همانطور که میبینید، دو کمد به عنوان رختکن تعبیه شده است.
میز ناهارخوری نیز در ضلع بالایی و روبروی آشپزخانه قرار گرفته است که دسترسی بسیار آسانی برای آشپزخانه و استفادهکنندگان فضای پذیرایی فراهم میکند. فضای آشپزخانه نیز از قسمت شمالی پلان به سمت چپ و ضلع غربی منتقل شده که محیطی دلنشینتر و بازتر ایجاد کرده است. سه صندلی نیز برای کانتر آشپزخانه تعبیه شده است تا استفاده بهتری از این فضا صورت گیرد. با این تغییرات، فضای پذیرایی بزرگتر و دلبازتر شده و با اضافه شدن مبلمان بیشتر، بخشی از مبلمان صرفاً برای پذیرایی و بخش دیگری در بالای آشپزخانه قرار دارد که همراه با تلویزیون، فضایی مناسب برای تماشای برنامهها فراهم میکند. ساکنان این واحد میتوانند به صورت جداگانه از هر دو بخش استفاده کنند.
در قسمت اتاقخوابها، همانطور که مشاهده میکنید، طراحی اتاق سمت چپ را تغییر دادهایم، به ویژه در قسمت حمام مستر، ورودی حمام مستر از داخل خود اتاق و از سمت چپ تعبیه شده است. همچنین کمدی مناسب و فضایی برای لاندری و رختشویی در سمت راست اتاق مستر قرار دادهایم که امکان نصب ماشین لباسشویی به همراه کمد و شلف را فراهم میکند. جای تختخواب نیز به سمت بالکن منتقل شده و ورودی بالکن با درب و پنجرههایی مناسب بهتر تعریف شده است.
در قسمت جنوبی پلان، اتاق وسطی به گونهای طراحی شده که استفاده بهینه و مناسبی از فضا صورت گیرد. میز تحریر نزدیک پنجره و کمدی مناسب در کنار آن تعبیه شده است و همچنین فضایی برای رختکن یا آویزان کردن لباسها در نظر گرفته شده است. اتاق جنوب شرقی نیز به همین صورت طراحی و چیدمان شده که فضای کافی برای کمد، مبلمان، میز و تخت فراهم باشد. حمام واقع در وسط پلان که مجاور باکس پله است، با ایجاد شکستگی کوچکی جمعتر شده است، اما این تغییر دسترسی به اتاقخوابها را آسانتر و بهتر کرده است.


برگههای مرتبط دیگر
کلام پایانی
در این مقاله سعی داشتیم به برخی از مهمترین نکاتی که رعایت آنها تأثیر معجزهآسایی در طرح نهایی شما میگذارد، اشارهکنیم. نکاتی مانند توجه به ایمنی، نور، فروش بهتر، پلهها، کودکان و… به بهتر دیده شدن طراحیها کمک میکند و از طرفی فروش سازهها را آسان میسازد.
انواع نقشههای ساختمانی کدماند؟
نقشه معماری، نقشههای تأسیساتی، نقشههای سازهای.
هدف از ترسیم نقشه ساختمان چیست؟
با ترسیم نقشه ساختمانی کارفرما مطلع میشود که درنهایت سازه به چه شکل درمیآید.
نقشه ساختمان چه مواردی را مشخص میکند؟
محل قرارگیری فدراسیون، سازه نگهبان، اعضای مهاربندی، مکان و ارتباط دقیق همه کلید و پریزها، تجهیزات برق و سیمکشی آنها و….